A major fundraising push is underway in Teulon as a local community group looks to transform Green Acres Park into a year-round event destination.

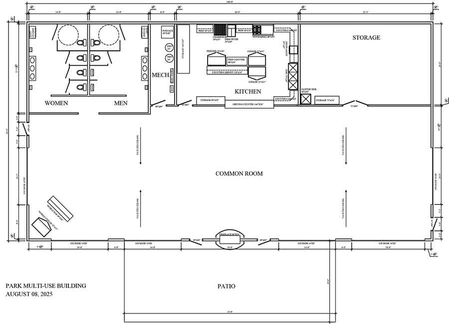
Conceptual floor plan shows the layout of the proposed climate-controlled facility at Green Acres Park
The Teulon and Area Lions Club has pledged up to $10,000 in matching grants to support the development of a new climate-controlled food service venue at the park, a project spearheaded by the Teulon Community Development Initiative (TCDI).
TCDI treasurer Sue Lee called the contribution a strong start to the group’s 2026 fundraising campaign.
“This is a great kick-start for our fundraising,” Lee said, noting the matching structure will help maximize community donations.
Plans for the proposed facility include a commercial kitchen, indoor dining space and modern accessible washrooms — amenities organizers say are increasingly necessary to meet current public health standards and support larger-scale events.
The design also features glass overhead doors on three sides, allowing the space to function as an open-air pavilion in summer while remaining enclosed during inclement weather. The building would include air conditioning, in-floor heating for colder months, and additional restrooms, creating a flexible venue suitable for events ranging from summer weddings to winter festivals.
Wray Whitmore, a director with the Teulon and Area Lions Club and secretary of TCDI, said the addition of a commercial kitchen would significantly enhance the park’s usability.
“A commercial kitchen in Green Acres Park is very significant,” he said. “It will attract caterers, support local businesses and help keep event revenue in Teulon while promoting tourism.”
Whitmore added that updated infrastructure would allow the park to better accommodate weddings, reunions, sporting events and community gatherings throughout the year.
Teulon and District Chamber of Commerce president Jan Lambourne also sees strong economic and community potential in the project.
“Green Acres Park is a beautiful space,” she said. “With a caterer-friendly venue, Teulon could attract more events like summer weddings and family reunions. Existing events would also benefit from reduced volunteer workload and lower costs, such as eliminating the need for portable washrooms.”
Organizers say the project has the potential to boost local economic activity by attracting visitors and enhancing existing events, increasing demand for local businesses year-round. Comparable venues in nearby communities host about 100 events annually, generating roughly $100,000 in gross revenue and $40,000 in net revenue that remains in the local economy.
Local officials say the idea of upgrading park facilities has been discussed for years. Teulon Coun. Michael Hepples and former councillor Mike Ledarney noted that multiple proposals have come forward over the past decade, with recent Parks and Public Spaces consultation results indicating strong community support for a facility like this.
TCDI chair David Leduchowski said the group aims to raise $1.5 million over the next three to five years to bring the project to life.
“Our goal is to have the facility funded within three years,” he said. “If completion is within reach, we will extend fundraising efforts for up to an additional two years.”
He noted that if the project is not completed within five years, TCDI will determine how the accumulated funds are used, with the requirement that they support a Town of Teulon project on town-owned property.
Leduchowski said the biggest challenge will be maintaining strong community engagement.
“To reach a goal of this size, we need broad support from residents, businesses and stakeholders,” he said. “That will require a strong, ongoing publicity and engagement campaign to keep people informed and involved.”
Since launching fundraising efforts in February, organizers say early momentum has been encouraging. With the Lions Club’s matching initiative, nearly $17,000 has already been raised, and the Teulon and District Chamber of Commerce is expected to announce its support in the near future.
Throughout 2025, the group focused on building a foundation for the project, including incorporating the committee, gathering letters of support, participating in strategic planning with East Interlake Community Futures and finalizing an agreement with the town.
Leduchowski said the long-term goal is to create a space that serves the community in all seasons.
“This is about creating a space where generations can gather, collaborate and connect,” he said.
The final building design and location within Green Acres Park are still being refined, with current drawings and renderings considered conceptual.
The initiative is being funded through donations rather than tax increases, with organizers encouraging residents to contribute. Donations are eligible for charitable tax receipts through the Interlake Community Foundation, with potential tax credits of up to 46 per cent.
Community members can donate online through the foundation or pick up donation forms locally.
